Skip to content
Drevodom Zázrivá
Jedinečné domy z dreva
Úvod
Spoločnosť »
O firme
Činnosť
Technológia
Domy z dreva »
Klasické domy z dreva
Moderné domy z dreva
Fotogaléria »
Klasické domy z dreva »
Hotové stavby
Interiéry
Hrubé stavby
Stavby z kameňa
Moderné domy z dreva »
grenzenlose freiheit
unser musterhaus in poing
seelenstreichler
natuerlich schoen
klein und fein
in nachbars naehe
herausforderung hanggrundstueck
farbenfroh
ausgefallene traeume
exklusive eleganz
ein hauch von luxus
endlose weiten
oase der stille
raumgreifende transparenz
Kontakt
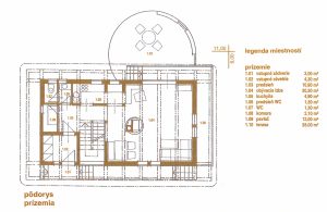
rodinný dom ZAVA
autor:
IK PROJEKT
na stiahnutie:
Súbor PDF
…
naspäť ↵
Navigácia v článku
rodinný dom PIKO 2
rodinný dom LAZY
Na zlepšenie našich služieb používame cookies. O ich používaní a možnostiach nastavenia sa môžete informovať bližšie kliknutím na
TU
.
OK